Патрубок приемо-раздаточный ППР-150


Мембранные предохранительные устройства Дыхательные клапана КДС Аварийные клапана Патрубок приемо-раздаточный Приемо-раздаточные устройства Пробоотборник стационарный резервуарный органного типа Пробоотборник стационарный резервуарный органного типа для резервуаров с понтоном Пробоотборник стационарный резервуарный трехуровневый Высоконапорный пеногенератор Камера низкократной пены Патрубок вентиляционный Плавающее заборное устройство Огнепреградители ОП Теплообменники кожухотрубчатыеНефтегазовые сепараторыФильтры напорныеБункеры для сыпучих материаловОтстойники нефтиСепараторы продувкиРасширители продувки Резервуарное Емкостное Фильтры Резервуары

Назначение изделия

 

Патрубки приемо-раздаточные ППР (далее – патрубки) являются составной частью резервуара и предназначены для подсоединения запорной арматуры, хлопушек и другого оборудования.

Пример обозначения патрубков:

ППР – 100 «D» УХЛ1 ППР – патрубки со стандартными присоединительными фланцами;

100 – диаметр патрубка;

«D» - вариант расположения патрубка в стене резервуара;

УХЛ1 – климатическое исполнение.

По устойчивости к воздействию климатических факторов внешней среды патрубки изготовляются в исполнениях У (умеренный климат) и УХЛ (холодный климат с нижним пределом температуры эксплуатации до –60ОС) категории размещения 1 по ГОСТ 15150-69.

 

Состав изделия

 

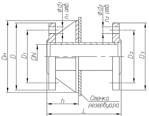
Патрубок ППР (рисунок 1) состоит из следующих основных частей: фланца для подсоединения запорной арматуры, усиливающей накладки для усиления места установки патрубка в резервуаре, трубы патрубка, фланца для подсоединения к патрубку внутри резервуара.

Патрубок ППР (рисунок 2) состоит из следующих основных частей: фланца для подсоединения запорной арматуры, усиливающих косынок (4шт.), усиливающей накладки для усиления места установки патрубка в резервуаре, трубы патрубка, фланца для подсоединения к патрубку внутри резервуара.

 

Подготовка и принципы работы

 

Перед монтажом патрубок необходимо подвергнуть осмотру с целью обнаружения механических повреждений, полученных при транспортировании.

Патрубки типа ППР монтируются на стальном резервуаре по его типовому проекту. Детали патрубков поставляются окрашенные грунтом. Окончательную окраску произвести после монтажа согласно требованиям на окраску резервуаров.

 

Требования безопасности

 

Все работы по обслуживанию и ремонту патрубков должны проводиться с учетом «Правил технической эксплуатации металлических резервуаров и инструкции по их ремонту». К монтажу и обслуживанию патрубков допускаются лица, изучившие настоящее руководство по эксплуатации и прошедшие инструктаж по правилам пожарной безопасности для данного объекта.

Запрещается проводить техническое обслуживание устройства при осуществлении технологических сливо-наливных операций в резервуаре.

ВНИМАНИЕ! При монтаже и обслуживании устройств необходимо пользоваться искробезопасным инструментом и приспособлениями, исключающими искрообразование.

 

Технические характеристики

 

Основные параметры и размеры патрубков (см. рис. 1 и рис.2) должны соответствовать следующим значениям таблицы 1

 

Обозначение изделия

Диаметр условного прохода, DN, мм

h,мм*

Присоединительные размеры фланцев патрубка

Габаритные размеры, мм

Масса, кг

D,мм

D1,мм

d

n

D3,мм

D2,мм

d1

n1

Длина** (L)

Диаметр (DH)

 

 

 

Наружный фланец

Внутренний фланец

 

 

 

Смотрите рисунок 1

ППР-80

80

200

195

160

18

8

195

160

18

8

300

180

9,5

ППР-100

100

200

215

180

18

8

215

180

18

8

300

220

14,6

ППР-150

150

200

280

240

22

8

280

240

22

8

300

320

22,5

ППР-200

200

250

335

295

22

8

335

295

22

8

350

440

29

ППР-250

250

250

405

355

26

12

405

355

26

12

380

550

50,7

ППР-300

300

250

460

410

26

12

460

410

26

12

380

650

66,8

ППР-350

350

300

520

470

26

16

520

470

26

16

380

760

96

Смотрите рисунок 2

ППР-400

400

300

580

525

30

16

580

525

30

16

565

860

172

ППР-500

500

400

710

650

33

20

710

650

33

20

625

1060

270

ППР-600

600

400

840

770

36

20

840

770

36

20

705

1260

370

ППР-700

700

400

910

840

39

24

910

840

39

24

600

1225

380

 

Величина патрубка ППР может отличаться по согласованию с Заказчиком.

**Длина патрубка ППР может отличаться по согласованию с Заказчиком.

Средний срок службы - 20 лет.

Пример обозначения при заказе: ППР-150 У1 ТУ 3689-003-26834151-2016, где ППР - патрубок приемо-раздаточный; 150 – условный проход патрубка; У1 – климатическое исполнение.

 

Комплект поставки

 

В комплект поставки патрубка приемо-раздаточного ППР-500 УХЛ входит:

фланец с патрубком в сборе, 1 шт;

фланец приварной, 1шт;

усиливающая накладка, 1 шт;

Руководство по эксплуатации, 1 шт.

Рисунок 1 – Патрубок приемо-раздаточный ППР от DN 50 до DN350.

Рисунок 2 – Патрубок приемо-раздаточный ППР от DN 400 до DN700.

 

 

Гарантийные обязательства

 

Предприятие-изготовитель гарантирует соответствие патрубков требованиям ТУ 3689-003-26834151-2016 при соблюдении условий эксплуатации, транспортирования, хранения и монтажа.

Предприятие-изготовитель гарантирует работу изделия в течении 12 месяцев со дня ввода в эксплуатацию, но не более 18 месяц со дня отгрузки с предприятия-изготовителя.

 

Политики конфиденциальности
  • 1. Сертификат соответствия ИСО 9001-2015 (ISO 9001:2015)
  • 2. Декларация о соответствии РВС, РВСС, РВСПК, РВСП, РВСАБ.
  • 3. Декларация ТР ТС 010/2011 КДС, ПСР.
  • 4. Декларация ТР ТС 010-2011 (АК, ПРУ, ПЗУ, ТП, УС, ШСП, МС)
  • 5. Декларация ТР ТС 010-2011 (патрубки ПВ, ПМ, ПЗ, ППР)
  • 6. Декларация ТР ТС 032-2013 (ФПСК, ГФС, ФГ)
  • 7. Пожарный сертификат (МПУ, ВПГ, КНП, РВГУ, ОП, ПОК, ОПКД)
  • 8. Декларация ТР ТС 010-2011 (ЕП, ЕПП, РГС, РГСН, РГСП)
  • 9. Декларация ТР ТС 032-2013 (ВЭЭ, ГЭЭ, НГС, НГСВ, ОГ, БС, ОВ, ЕП, ЕПП)
Запросить разрешительную документацию